Li Interior Designer

TA6 – Residential farm house

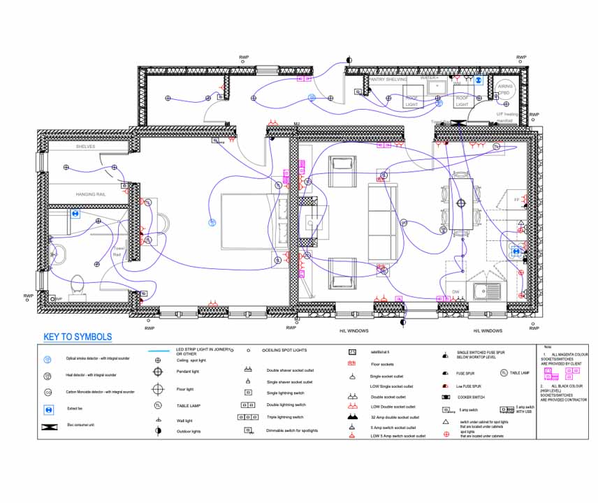
Li interior design contributing  project in London with furniture/electrical plans, elevations for renovating residential farm house.

Technical Drawings

Technical drawings are essential for communicating ideas in interior design. To help clients understand the layout of the space and see sizes of furniture and other elements in. This is the main part of the design process and drawings are discussed with the client until we come up and agree with the final layout. Li interior design will make sure that the design is right, that arranged furniture is practical to use, so that the furniture does not obscure the space, and all the furniture looks and feels harmoniously and practical.